Monoflange Valves

GV-135-MKB-DBB, Key Block DBB Valves Double Block & Bleed - Monoflange Valves

Key Block DBB Valves Double Block & Bleed Distributor in Saudi Arabia

Model No. GV-135-MKB-DBB

Key Block GV-135-MKB-DBB Double Block & Bleed
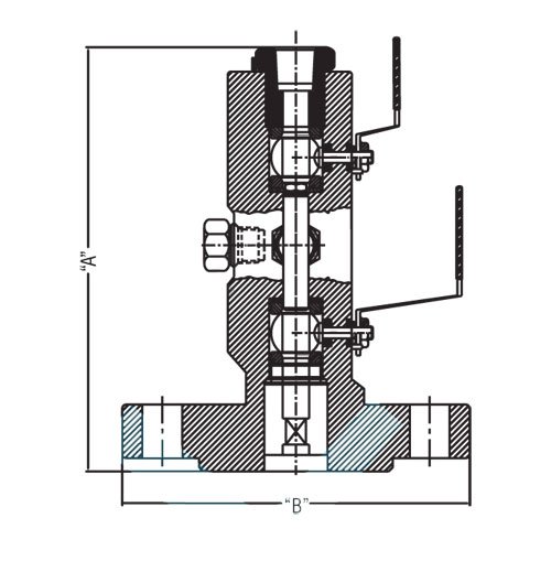
The GV-135-MKB-DBB features two independently operable 10mm bore ball valves for isolation service with an intermediate 5.0mm bore globe style needle valve for venting service.

The GV-135-MKB-DBB are integrally forged one piece double block & bleed, assemblies for primary isolation of pressure take-offs, where the valve is directly mounted to the vessel or process pipe. Instruments may be directly mounted to the valves outlet or alternatively remotely mounted with gauge line / impulse pipe line

STANDARD FEATURES

  • 1/2" NPT threaded female outlet as standard to ANSI / ASME B1.20.1.
  • Bolted Outlet Options
  • 1/2" NPT threaded female vent connection to ANSI / ASME B1.20.1.
  • Material thickness to ANSI B16.34.
  • ANSI B16.5 flanged inlet connection 1/2" to 2" sizes 150 lbs rated to 2500 lbs rated.
  • Ball Valve Seat Materials. A choice of PTFE and PEEK are available.
  • Vent Needle Valve Gland Packing Materials PTFE is offered as Standard. Graphite is also available as an option.

APPLICATIONS

  • Double Block & Bleed
  • Level Measurement
  • Pressure Measurement
  • Chemical Injection
  • Sampling
  • Flow Measurement

(OS &Y) and Globe Style Needle Valve Gland packing Materials Standard Valves are offered with Graphite. PTFE is also available as an option

SIZE
(inch)
RATING
(Ib.)
A
(mm)
ØB
(mm)
1/2" 150 57 89
3/4" 150 57 99
1" 150 57 108
11/2" 150 60 127
2" 150 63 153
1/2" 300 57 96
3/4" 300 60 118
1" 300 60 124
11/2" 300 63 156
2" 300 63 165
1/2" 600 61 96
3/4" 600 64 118
1" 600 64 124
11/2" 600 67 156
2" 600 67 165
1/2" 900 64 121
3/4" 900 64 130
1" 900 67 150
11/2" 900 67 178
2" 900 72 216
1/2" 1500 64 121
3/4" 1500 64 130
1" 1500 67 150
11/2" 1500 67 178
2" 1500 72 216
1/2" 2500 64 134
3/4" 2500 64 140
1" 2500 67 159
11/2" 2500 72 203
2" 2500 73 235

Note: 1. Packing is optional with graphite for high temperature to 450℃